合肥裝飾公司>合肥裝修公司>辦公室裝修>廠房裝修>展廳裝修>辦公樓設計裝修 > 案例展示 > 精品店鋪/餐飲店鋪裝修 > 合肥四季沐歌連鎖店面裝修設計案例
項目類型:簡約風電器展廳裝修設計 專業(yè)合肥店鋪裝修公司? 合肥店面裝修設計公司
項目設計:半山裝飾店面設計部A組
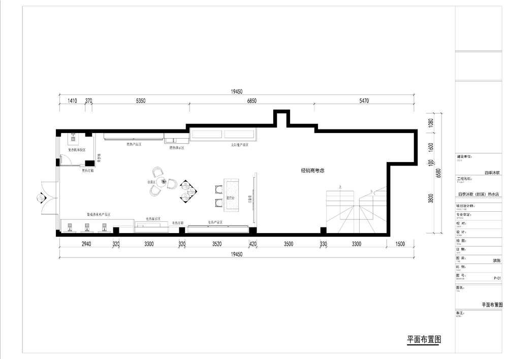
項目面積:150㎡
所在地:安徽·合肥市
設計說明:
四季沐歌連鎖店展廳裝修項目是一個集展示、銷售、體驗為一體的商業(yè)空間。該項目旨在通過創(chuàng)新的展示設計,提升品牌形象,吸引更多潛在客戶,并促進產品的銷售。本文將對四季沐歌連鎖店展廳項目的案例進行分析,探討其設計理念和特點。
該店鋪裝修設計時,四季沐歌注重營造一個舒適、自然的氛圍。展廳以白色為主調,搭配木質材料,呈現出清新、自然的感覺。同時,燈光設計也非??季浚{的燈光為整個展廳增添了溫馨的氛圍。






安徽半山裝飾工程有限公司是一家從事多年的室內設計裝飾裝修企業(yè),具有總包叁級、裝飾裝修專項施工乙級以及工程設計專項資質,主要致力于辦公室裝修、寫字樓裝修、廠房裝修、展廳裝修、售樓部裝修、樣板間裝修、民宿裝修、店面店鋪裝修、學校裝修、及其它商業(yè)空間裝修設計施工一體化服務。
咨詢電話:18919604649